WE3 au bord de l’eau | Architectes SPF

0
677
Arch2O.com
 Conçu par Zoltan E. Pali, FAIA et sa société SPF:a, WE3 est un espace de travail créatif de six étages dans la zone commercialement robuste de Playa Vista familièrement appelée «Silicon Beach» et est le troisième et dernier bâtiment d’un pré- campus commercial existant.

Photographie par © Mike Kelley

Compte tenu de la portée physique du projet et des exigences esthétiques nécessaires pour attirer les talents technologiques et créatifs de haut niveau pour lesquels la région est connue (y compris Google, Yahoo, YouTube et l’Institut des technologies créatives de l’USC),  le principal défi de SPF:a était de créer un plan entièrement intégré aux conditions existantes qui maximisait à la fois la zone constructible du lot et maintenait une norme architecturale convaincante.

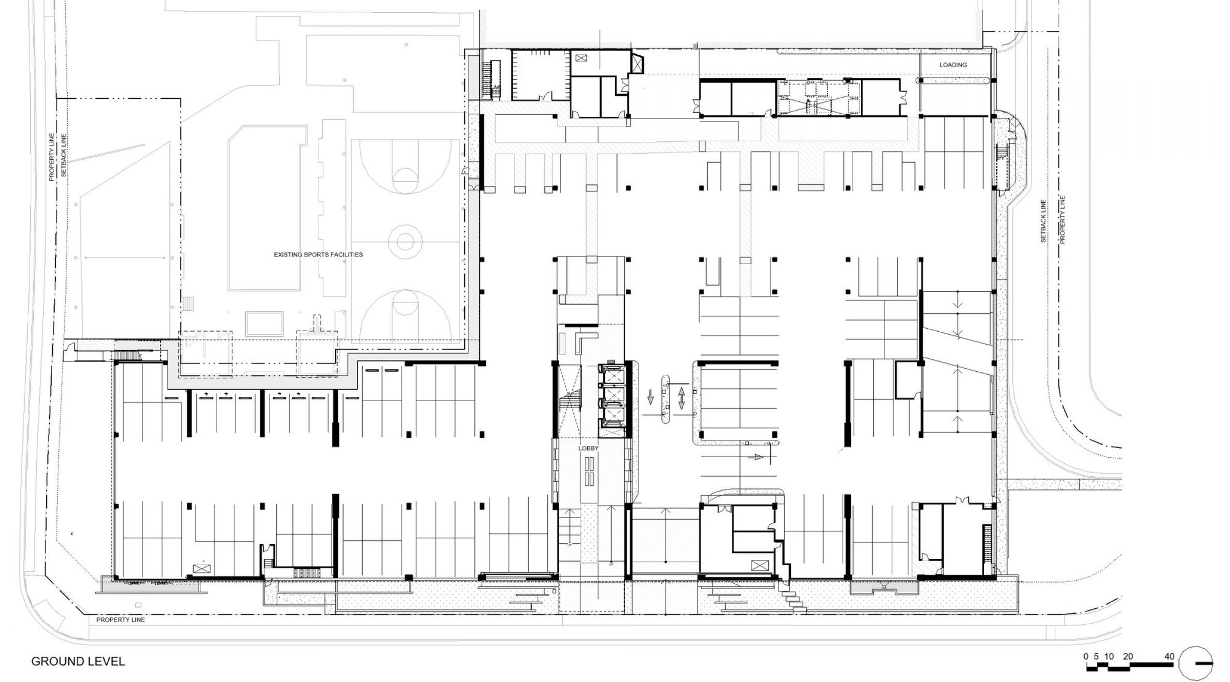
Initialement demandé par le client de situer le bâtiment à l’extrémité nord du site pour éviter les structures existantes, le projet a évolué pour créer un plateau de bureau plus long et plus flexible orienté dans le sens nord-sud, permettant plus de lumière et de vues sur chaque surélévation et création d’une nouvelle cour publique. Un terrain de sport existant au niveau du sol a été déplacé sur la sous-structure du parking pour permettre la réalisation de la stratégie du site.

Photographie par © Mike Kelley

La construction résultante a une longueur de 400 pieds et une surface utilisable totale de 160 000 pieds carrés. Exprimé horizontalement le long de l’intégralité du bord est du campus, lorsqu’il est associé aux deux structures debout, un effet collégial classique est créé avec les trois bâtiments entourant un quadrilatère ouvert.

La structure comprend quatre niveaux de stationnement – 600 voitures au total – deux souterrains, un au niveau du sol et un au-dessus du niveau du sol – et quatre étages d’espace de travail ouvert, reflétant la tendance en matière de planification et de culture de bureau. Toutes les circulations et sorties sont conçues pour être extérieures, ce qui est maintenant devenu par hasard un avantage à travailler dans une pandémie. Chacun des quatre niveaux est d’environ 40 000 pieds carrés et quinze pieds de sol à sol, avec l’intégralité de la superstructure en béton , laissée exposée.

Photographie par © Mike Kelley

L’une des caractéristiques les plus distinctives du projet : une peau « flottante », perforée, qui enveloppe l’extérieur du bâtiment. Inspirée par le jeu de la lumière sur l’eau et influencée par la géométrie naturelle inégale d’Ellsworth Kelly et d’Agnes Martin, la peau est conçue pour se dématérialiser, alléger visuellement la masse importante de la structure tout en fournissant fonctionnellement la couverture de façade en verre de plein fouet. Soleil. La lumière naturelle est doucement filtrée dans toutes les directions et répartie proportionnellement sur l’ensemble de la surface intérieure.

Photographie par © Mike Kelley

Informations sur le projet :
Architectes : Studio Pali Fekete architects
Lieu : Los Angeles , États-Unis
Superficie : 407 000 pi²
Année du projet : 2020
Photographies : Mike Kelley
Fabricants : Arcadia Custom ,  Morin | Kingspan

 

LAISSER UN COMMENTAIRE

S'il vous plaît entrez votre commentaire!
S'il vous plaît entrez votre nom ici